Projets
Logement collectif
Maison individuelle
Santé
Aménagement intérieur
Tertiaire-Industrie
Prestations
Dossier de plans
Image
Contact
Projets
Logement collectif
Maison individuelle
Santé
Aménagement intérieur
Tertiaire-Industrie
Prestations
Dossier de plans
Image
Contact
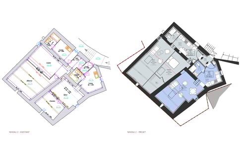
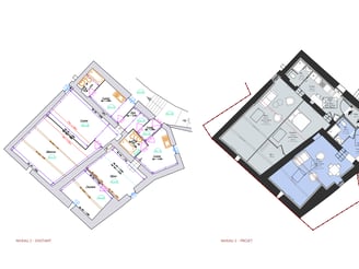
Réhabilitation d'un immeuble de logement
Mission: DP/PRO
Architecte:
LLAA Architec
tes
Maître d'ouvrage: Privé
Situation: Privas (07)
Année: 2023
Propriété intellectuelle LLAA Architectes
2 rue Jean Jaurès
69100 Villeurbanne
06.76.52.63.94
jblanc.aria@gmail.com
Mentions légales